In this blog we will learn about all the raw materials that are required to make Upvc Sliding Windows & Doors. These are also the most common type of Upvc Windows and doors that are sold in the market. They are the most economical type of Upvc Window or Door design you can make and that is the very reason most windows and doors sold are mostly sliding.
Before we start, if you plan to setup your own upvc window and door fabrication unit then you can contact us. We manufacture fully portable upvc window machines. We also provide you training and raw material suppliers contacts alongwith your purchase, so that starting a upvc window manufacturing unit becomes a easy task for you.
The frames of this kind of Upvc Windows and doors remain constant whereas the thickness of the sash changes depending on whether you are making a sliding window or door. In-case of a window sash, the width of the uPVC sash profile is less and in-case of a door sash the width of the uPVC sash profile is more.







The above-given profile designs may vary from company to company.
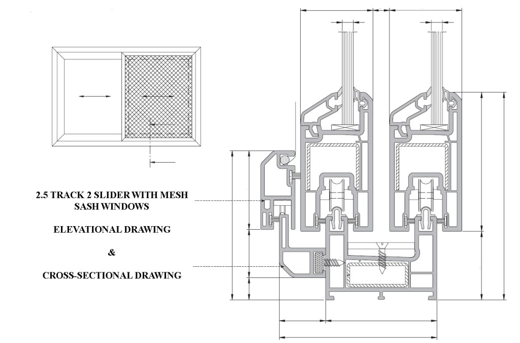
The most general series of profiles used to make sliding windows and doors are 60 series (for 2 Track Sliding Windows & Doors), 88 series (for 2.5 Track Sliding Windows and mesh sash) and 112 series (for 3 Track windows and doors).
Although these are commonly available series, apart from these other un-common series are also made by different Upvc Profile companies to make Upvc Windows and doors.
The window opening that a customer receives in a 2 Track or 2.5 Track sliding window or door is about 50%. Whereas, if they are using a 3 Track Window or door then the opening that they will get is upto 66%.
Customers can also be suggested to go for a 2 Track 4 Slider or a 3 Track 6 Slider window or door in case of a very wide opening aperture of the window or door area.
Glass thickness starting from 3 mm Single Glass upto 20 mm D. G. U. (Double Glazed Unit) thickness can be used in Upvc Sliding Windows & Doors.

Customer does have the option of going for Single point lock (touchlock or crescent lock) for their windows whereas they can use both single point or multi-point lock (espag) for their doors. Multi-point locks cannot be used in window sashes unless the window sash is made from a sliding door sash profile.
All hardware and hardware fixtures should be fixed using stainless steel screws to prevent any rust in the future.




For rollers, fabricators can go for Single roller or Double adjustable rollers in case of an Upvc Sliding Window and a Double adjustable door roller incase of a Upvc Sliding Door.



The rubber gaskets used in the Upvc Sliding Windows and doors should be of EPDM quality. There is basically three types of rubber gaskets that are used in the making of a sliding window or door.
- K type: Used in the Upvc Glazing bead profile
- O type: Used in Upvc Window & Door sash profile
- Round type: Used to fix the mosquito net in the mesh profile
The colour of the gasket used may vary as per availability or as per the fabricator’s choice. But the colour black is most commonly used.



If the Sliding window or door sash is too heavy then it is mandatory to use Aluminium Track on the bottom profile of the sliding frame.

Woolpile is also used around the sliding sash to prevent it from being loose during the running of the sliding sash along with the frame profile. Again the colour of the woolpile used may vary. But the colour grey and black are the two most common colours available in the market.
The woolpile used should be preferable of silicated quality (silicone tipped) to prevent soaking of water during the rainy season.

During installation, it is recommended to use nylon capped galvanized fasteners for the fixing of the frames of the Upvc Windows and Doors.

Any gaps that remain around the wall and the Upvc Frame should be sealed using a Weather Silicone of Neutral Cure preferably matching the colour of the Upvc Window Frame or of white colour.

To learn more about Upvc Window & Door making process or to setup your very own Upvc Window workshop, contact us today.
One thought on “Raw Materials to make Upvc Sliding Windows and Doors”
Comments are closed.